
PP6-30A型聚丙烯高压离心风机
PP6-30A型聚丙烯高压离心风机具有强度高、重量轻、耐腐蚀性能好、不易老化、噪音低等特点,是一种较理想的新型防腐蚀风机,该系列风机适用于化工、纺织、电镀、实验室等场所排送含有一定浓度的酸、碱、盐等腐蚀性气体。不允许用来排除含芳香族化合物、脂肪族与芳香碳氢化合物的卤素衍生物、酮类等腐蚀性气体。风机使用温度为≤40℃,且避免阳光暴晒,现场附近不得有热源。PP6-30A polypropylene centrifugal fan
PP6-30(A) polypropylene high-pressure centrifugal fan has the advantages of high strength, light weight, good corrosion resistance, not easy ageing, low noise characteristics, is an ideal new anti-corrosion fan, fans of the series is suitable for chemical, textile, electroplating, laboratory and other places discharge contains a certain concentration of acid and alkali, salt and other corrosive gases. It is not allowed to remove corrosive gases, such as halogen derivatives, ketones, and other compounds containing aromatic compounds, aliphatic and aromatic hydrocarbons. Fan temperature is less than or equal to40 DEG C, and avoid the sun, near the scene without heat source.|
机 号 Model(No) |
||||
|---|---|---|---|---|
|
功 率 Power(Kw) |
转 速 Speed(r/min) |
流 量 Volume(M3/h) |
全 压 Pressure(Pa) |
|
| 5.5A | 7.5 | 2900 | 2165-7722 | 4460-3060 |
| 1.5 | 1450 | 1034-3690 | 1140-790 | |
| 5.5C | 7.5 | 2500 | 11845-6582 | 3240-2230 |
| 4 | 2000 | 1476-5266 | 2080-1430 | |
| 6.3A | 2.2 | 1450 | 1555-5545 | 1320-920 |
| 6.3C | 11 | 2500 | 2776-9902 | 4260-2960 |
| 7.5 | 2000 | 2221-7922 | 2720-1870 | |
| 7.1A | 5.5 | 1450 | 2225-7937 | 1690-1160 |
| 7.1C | 15 | 2000 | 3179-11393 | 3470-2380 |
| 11 | 1800 | 2861-10205 | 2810-1930 |
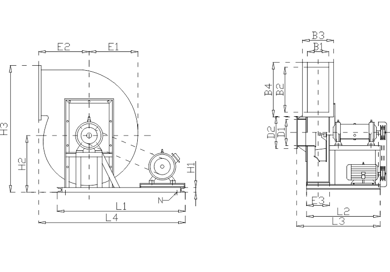
宝贝为人工实物测量会有一定误差,以收到的宝贝为准。 单位Unit: mm(毫米)
| 机号 | |||||||||||||||||
|---|---|---|---|---|---|---|---|---|---|---|---|---|---|---|---|---|---|
| 进风口 | 出风口 | 外形尺寸 | 底架尺寸 | ||||||||||||||
| NO | D1 | D2 | B1 | B2 | B3 | B4 | E1 | E2 | E3 | H2 | H3 | L3 | L4 | H1 | L1 | L2 | N |
| 5.5C | 195 | 295 | 179 | 283 | 256 | 360 | 545 | 245 | 195 | 472 | 1068 | 530 | 1160 | 60 | 1107 | 448 | M12 |
| 6.3C | 240 | 345 | 237 | 333 | 314 | 410 | 597 | 435 | 202 | 550 | 1204 | 660 | 1410 | 60 | 1305 | 594 | M12 |
| 7.1C | 280 | 380 | 283 | 381 | 360 | 460 | 650 | 515 | 210 | 628 | 1340 | 680 | 1660 | 80 | 1503 | 740 | M12 |
欢迎进入“万通风机”官方网站
Welcome to Wantong Xingfeng official website
![]() |
广州市万通通风设备有限公司 广州市万通通风设备有限公司(注册商标:万通星风)是一家研发、生产、销售、安装通风设备、大气污染防治设备的多元化专业性企业。产品广泛用于:电镀、化工、电子、电气、线路板、机械、电站、电厂、科研、医院、实验室、矿业、冶炼、橡胶、林业、皮革、纸业、陶瓷、模具车间、汽车制造,新能源机械等配套以及各种含有腐蚀性气体的场合。每一个产品都见证了万通的品质,让万通立足全国,走向世界!经过十几年发展“万通星风”已汇聚了一群技术精湛,经验丰富的专业技术人员,引进消化国内外先进技术,是国内拥有自主研发大气污染防治设备、防腐风机能力的厂家。“国际品质、万通打造” 全国服务热线: |
广州总公司
Guangzhou General Corporation
![]() |
销售电话: |
![]() |
官方网址: |
![]() |
电子邮箱:wantongfj@qq.com |
![]() |
![]() |
地址:广州市番禺区沙湾镇动车街33号之二 路线:广州地铁3号线到番禺广场站下,换乘公交车番68路、到古东村总站下。 |
|||
公司地图
Company map
咨询:PP6-30型乌海防腐高压风机
* 为必填项
广州市万通通风设备有限公司
销售电话:
ONLINE CONSUL TATION